9:00 am - 6:00 pm
-
-
-
C-wing/105, B-wing/207 Kailash industrial estate, Vikhroli park site, Vikhroli west, 4000086
9:00 am - 6:00 pm
C-wing/105, B-wing/207 Kailash industrial estate, Vikhroli park site, Vikhroli west, 4000086

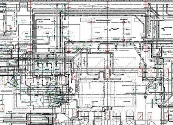
Mauli Engineering converts your ideas and concepts into highly accurate 2D CAD drawings. We offer industry-aligned CAD drafting services and CAD-drawing services with a combination of skilled, qualified, and experienced CAD professionals equipped with the latest tools. With a proven CAD drafting and design services approach, our team of qualified engineers and drafters deliver high quality, accurate scheduling and estimation of project requirements, with a quick turnaround achieved through higher accuracy for the best returns on your investments.
Autodesk AutoCAD
ASME, ASTM, ISO, ANSI, BS, DIN
Based in India, our team of qualified engineers, CAD designers, draftsmen and project planning managers dedicatedly work on client projects with utmost collaboration to create drafts and make amendments quickly till the desired quality is achieved. So, whether you would like to build a 3D model to better visualize the basic concept, design and output of the facility, you’ve come to the right place. We are happy to assist you and provide solutions.
AutoCAD Plant 3D, Smart Plant 3D (SP3D) & AVEVA E3D